About
Blockhouse Bay Units.
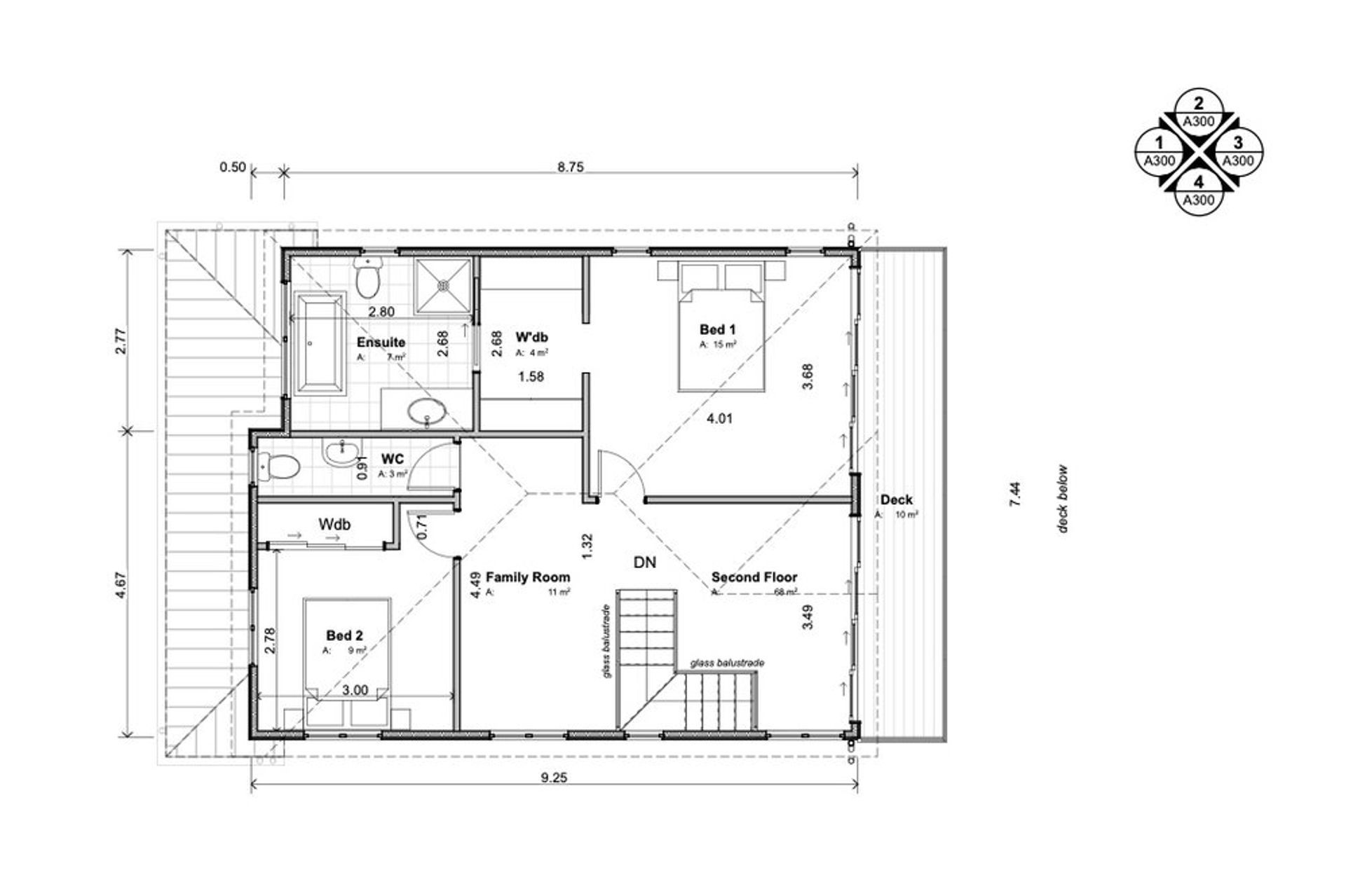
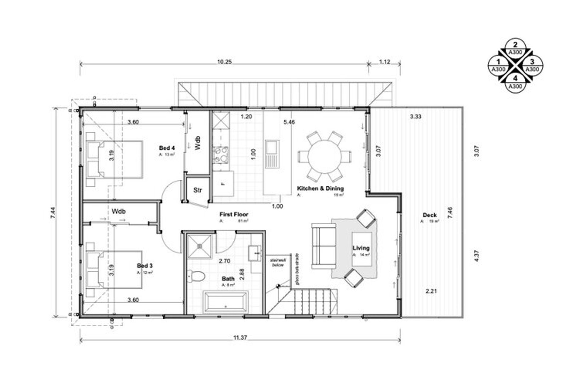
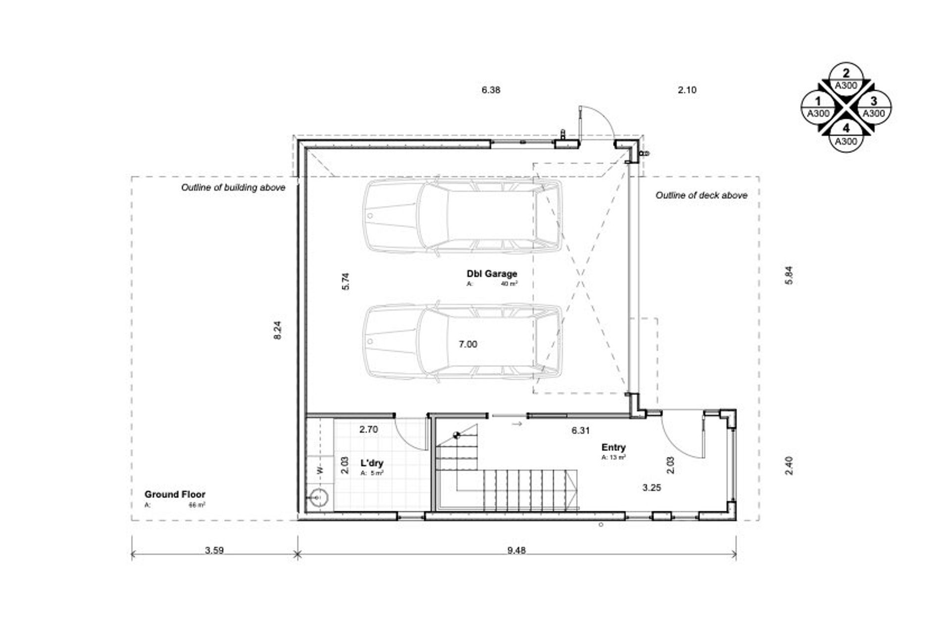
ArchiPro Project Summary - Contemporary four-unit development in Blockhouse Bay, Auckland, featuring spacious standalone four-bedroom units, designed to stand out in a market dominated by two-bedroom terrace units. Completed in 2025 for Futura NZ Limited.
- Title:
- Blockhouse Bay Road Development
- Architectural Designer:
- Metropolitan Design
- Category:
- Residential/
- New Builds
- Region:
- Blockhouse Bay, Auckland, NZ
- Completed:
- 2025
- Price range:
- $1m - $2m
- Building style:
- Contemporary
- Client:
- Futura NZ Limited
- Photographers:
- Metropolitan DesignMetropolitan Design
Project Gallery











Views and Engagement
Products used
Professionals used

Metropolitan Design. Metropolitan Design is Jonnel Mamauag, a licensed freelance design consultant based in Auckland, focused on residential design for new and renovation builds.
I started my professional career in 2014 and have steadily increased my knowledge and expertise in various project scales, from single-family homes to significant 50+ multi-unit developments.
Please refer to our Services page for more information and an overview of my services.
Founded
2019
Established presence in the industry.
Projects Listed
6
A portfolio of work to explore.

Metropolitan Design.
Profile
Projects
Contact
Other People also viewed
Why ArchiPro?
No more endless searching -
Everything you need, all in one place.Real projects, real experts -
Work with vetted architects, designers, and suppliers.Designed for Australia -
Projects, products, and professionals that meet local standards.From inspiration to reality -
Find your style and connect with the experts behind it.Start your Project
Start you project with a free account to unlock features designed to help you simplify your building project.
Learn MoreBecome a Pro
Showcase your business on ArchiPro and join industry leading brands showcasing their products and expertise.
Learn More

























