About
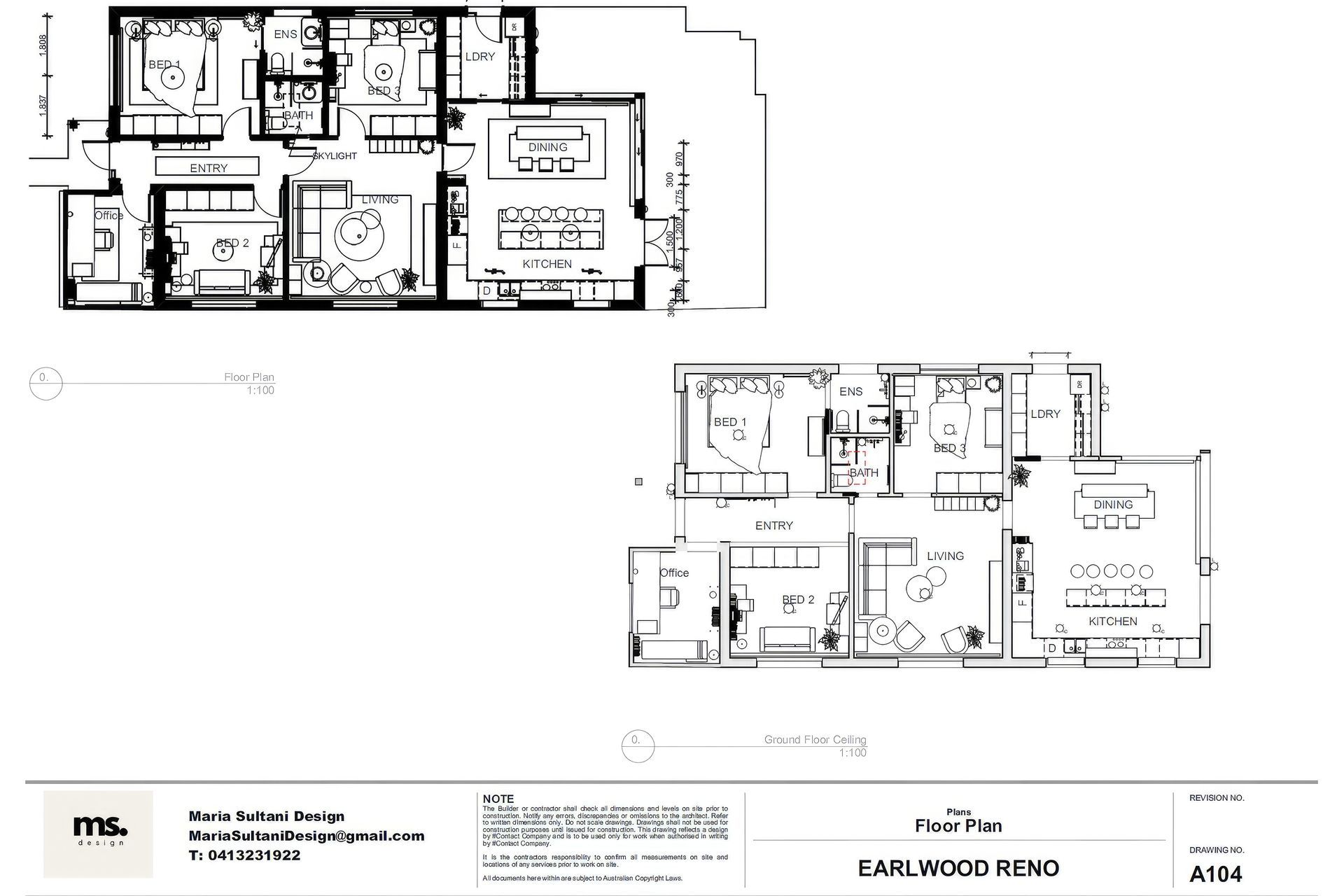
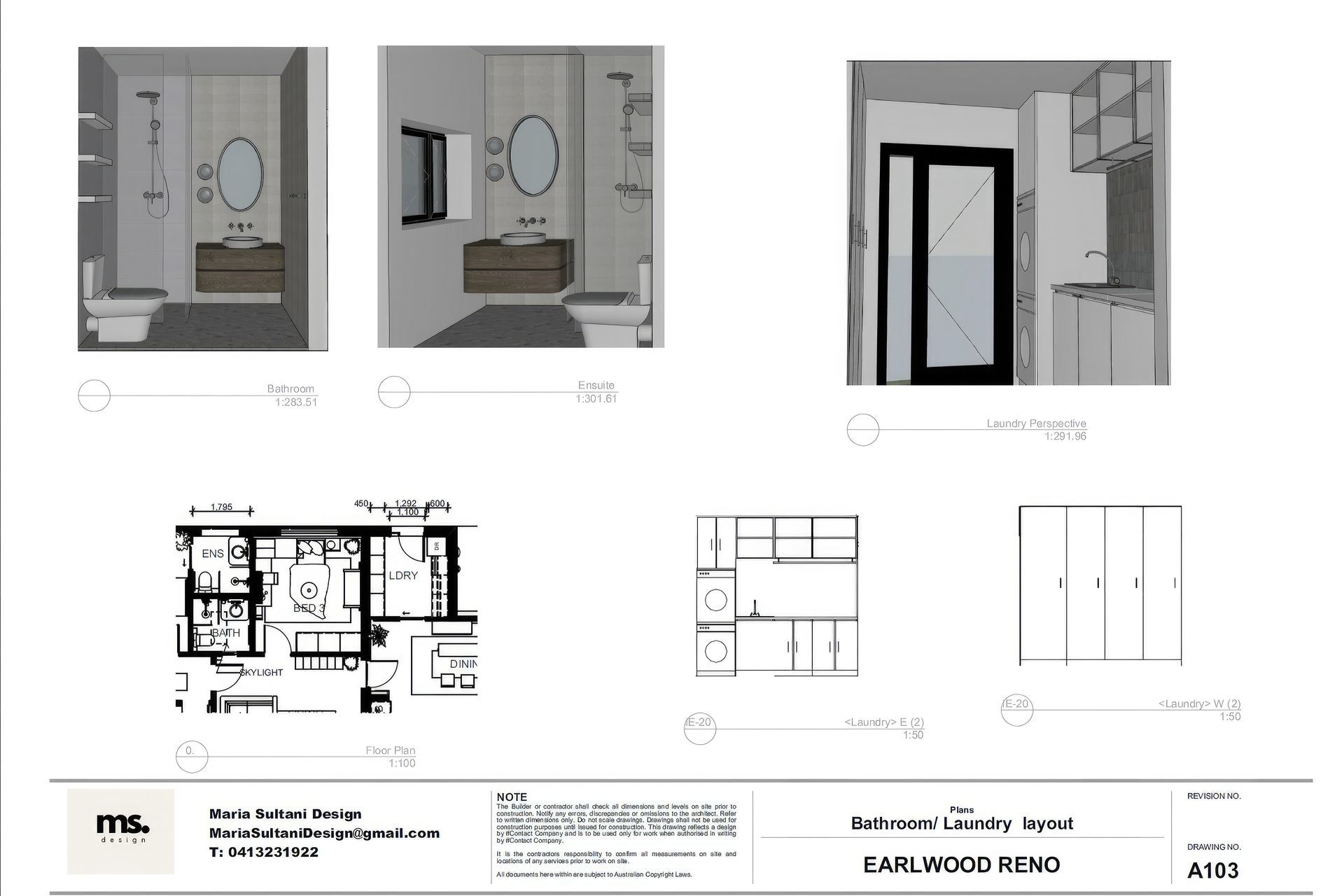
Earlwood Home Extension.
ArchiPro Project Summary - Thoughtfully designed extension and renovation of a family home, featuring a new office, expanded kitchen and dining area, reconfigured bathrooms, and enhanced storage solutions for modern living.
- Title:
- Earlwood Renovation Extension
- Interior Designer:
- Maria Sultani Design
- Category:
- Residential/
- Renovations and Extensions
- Completed:
- 2025
- Client:
- Roslyn
- Photographers:
- Maria Sultani Design
Project Gallery







Views and Engagement
Professionals used

Maria Sultani Design. I’m a concept interior designer. I specialise in the early stages of design, crafting mood boards, spatial layouts, and design direction that set the tone for your entire project. I help you discover the look and feel of your space before a single item is purchased or built, ensuring every decision is aligned with your vision, lifestyle, and values.
For me, interior design goes beyond aesthetics, it’s about crafting spaces that reflect your essence and support the way you want to live. Every detail is an opportunity to tell your story, elevate your everyday, and create a home that inspires you, day after day.
With a background in science and design, my approach is rooted in the belief that beauty and comfort can rewire how we feel and live. I design with purpose, to create interiors that feel as good as they look.
We bridge the gap between architect and builder, making the process less daunting and more empowering, always with your lifestyle, needs, and personal journey at the heart of it.
Founded
2020
Established presence in the industry.
Projects Listed
4
A portfolio of work to explore.

Maria Sultani Design.
Profile
Projects
Contact
Other People also viewed
Why ArchiPro?
No more endless searching -
Everything you need, all in one place.Real projects, real experts -
Work with vetted architects, designers, and suppliers.Designed for Australia -
Projects, products, and professionals that meet local standards.From inspiration to reality -
Find your style and connect with the experts behind it.Start your Project
Start you project with a free account to unlock features designed to help you simplify your building project.
Learn MoreBecome a Pro
Showcase your business on ArchiPro and join industry leading brands showcasing their products and expertise.
Learn More











