About
Falcons Landing Show Home.
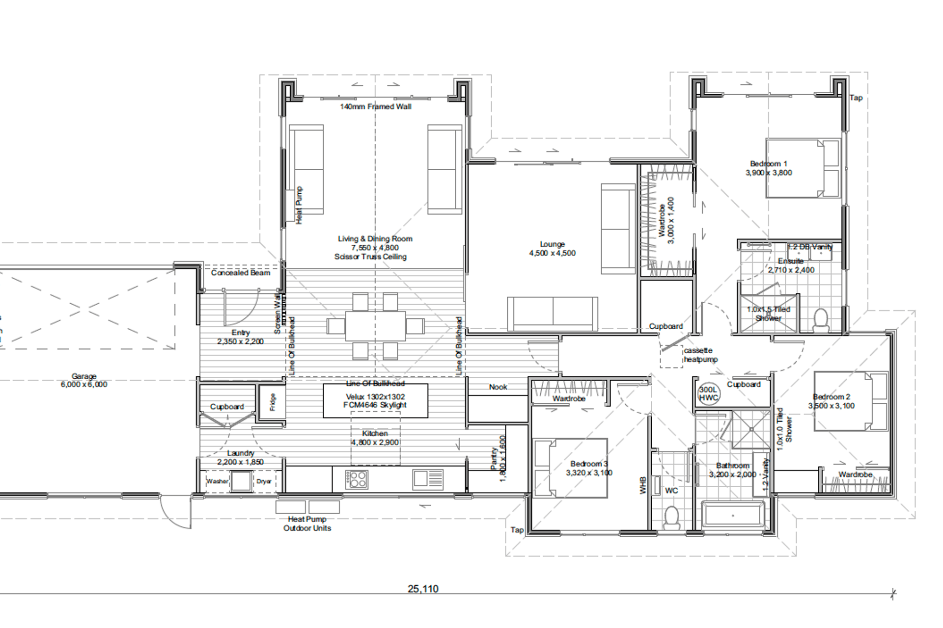
ArchiPro Project Summary - Discover the Falcons Landing Show Home: a spacious 213m2, single-storey residence featuring 3 bedrooms, 2 bathrooms, and a 2-car garage, designed for relaxed family living and entertaining.
- Title:
- Falcons Landing Show Home
- Construction:
- Orange Homes
- Category:
- Residential/
- New Builds
Project Gallery















Views and Engagement

Orange Homes. At Orange Homes, we’re a close-knit, friendly team. Our owner, Greg Orange, has been in the building industry for 40 years and many of our staff have been here for years as well. So you can be sure of a warm welcome, a depth of experience and expertise, and a total commitment from all of us to you and your new home.
Year Joined
2024
Established presence on ArchiPro.
Projects Listed
6
A portfolio of work to explore.

Orange Homes.
Profile
Projects
Contact
Other People also viewed
Why ArchiPro?
No more endless searching -
Everything you need, all in one place.Real projects, real experts -
Work with vetted architects, designers, and suppliers.Designed for Australia -
Projects, products, and professionals that meet local standards.From inspiration to reality -
Find your style and connect with the experts behind it.Start your Project
Start you project with a free account to unlock features designed to help you simplify your building project.
Learn MoreBecome a Pro
Showcase your business on ArchiPro and join industry leading brands showcasing their products and expertise.
Learn More













