Geelong Cultural Precinct.
ArchiPro Project Summary - Revitalising Geelong’s Arts and Cultural Precinct through urban design, master planning, and stakeholder collaboration to enhance public spaces and promote Geelong as an arts and events city.
- Title:
- Revitalising Geelong’s Arts and Cultural Precinct
- Landscape Architect:
- Perry Mills & Associates Landscape Architects
- Category:
- Planning/
- Master Planning
- Region:
- Geelong, Victoria, AU
- Completed:
- 2017
- Client:
- Revitalising Central Geelong Partnership
- Photographers:
- Perry Mills & Associates Landscape...
Revitalising Central Geelong Action Plan
The City of Greater Geelong and Department of Environment, Land, Water and Planning are working together as the Revitalising Central Geelong Partnership to plan and deliver projects identified in the Revitalising Central Geelong Action Plan.
The Revitalising Central Geelong Action Plan is a ten-year plan designed to deliver new jobs, homes and services to revitalise Geelong.
The Action Plan’s Smart City initiative proposes a stronger integration and greater diversity of health, education and cultural land uses. To deliver on this outcome, the action plan recognises the need for a masterplan to achieve an integrated design outcome for facilities within the cultural precinct.
The Central Geelong Arts and Cultural Precinct Masterplan delivers on this action.
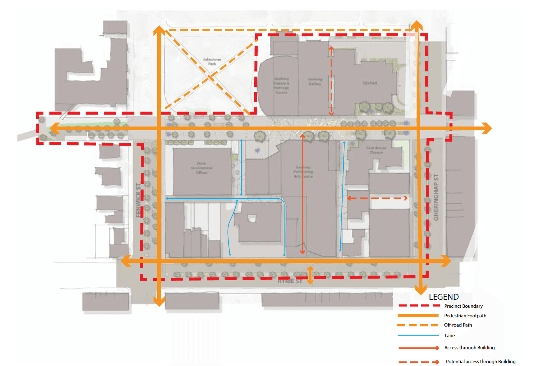
It has been developed to complement other projects that relate nearby precincts, including the Geelong Station, James Precinct and Johnstone Park.
The Arts and Cultural Precinct Masterplan delivers a reimagined Little Malop Street that will become a focus for arts and cultural activity in central Geelong.
The Little Malop Street design enables the temporary closure of the street, focused around a central events space. This space is imagined with a special pavement treatment incorporating an in situ art work, signifying the importance of the place for the arts and cultural life of the city.
The masterplan prioritises Little Malop Street for pedestrians, providing for slow vehicle and bicycle movements in a shared space. Convenient short stay on-street car parking is provided as are temporary bus bays.
A single level pavement across the street enables its easy transformation into an events place. Greening of the precinct is achieved through new street trees and plantings, which also aid in marking shared spaces.
New pedestrian prioritised linkages are provided through Police Lane and a realigned Aitchison Place. A new pedestrian signalised crossing at Ryrie Street improves north-south connections into the precinct.
Precinct wide issues and opportunities:
- Create a distinctive precinct character through public realm streetscape treatments
- Reinforce the precinct character through a unique urban art/street furniture theme
- Green the precinct through planting and building treatments, including green walls
- Integrate art into the public realm and built form, including through projections and installations on blank walls
- Provide opportunities for street-based arts and cultural events
- Establish a wayfinding theme to connect the precinct with the CBD and beyond. Reproduced under a Creative Commons Attribution 4.0 International licence from ‘Arts and Cultural Precinct Master Plan’ by the State of Victoria






Founded
Projects Listed

Perry Mills & Associates Landscape Architects.
Other People also viewed
Why ArchiPro?
No more endless searching -
Everything you need, all in one place.Real projects, real experts -
Work with vetted architects, designers, and suppliers.Designed for Australia -
Projects, products, and professionals that meet local standards.From inspiration to reality -
Find your style and connect with the experts behind it.Start your Project
Start you project with a free account to unlock features designed to help you simplify your building project.
Learn MoreBecome a Pro
Showcase your business on ArchiPro and join industry leading brands showcasing their products and expertise.
Learn More










