Spotted Gum House.
ArchiPro Project Summary - A transformative renovation of a classic 1960s Adelaide residence, tailored for a young family while preserving the original footprint.
- Title:
- Spotted Gum House
- Architect:
- Jon Lowe Architect
- Category:
- Residential/
- Renovations and Extensions
- Completed:
- 2022
- Price range:
- $0 - $0.25m
- Photographers:
- @belindamonck
Location: Kaurna Land
Area: 15m2 Addition
Architect: Jon Lowe
Interior Design: Jon Lowe
Completed: 2022
Photography: @belindamonck
Construction: Leske Homes
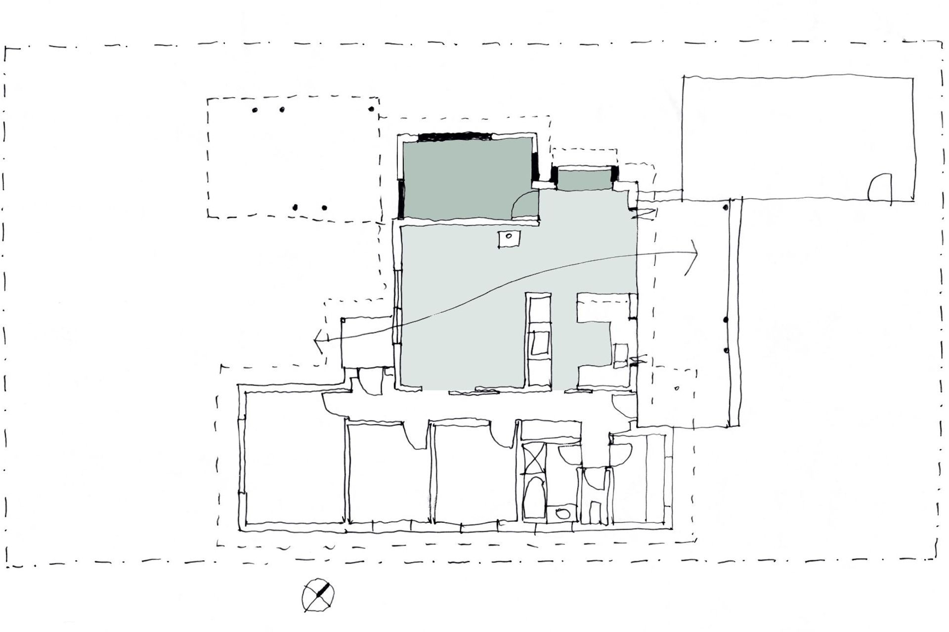
In the original house the existing kitchen was boxed-in and the dining room faced a cramped gazebo on the western side of the house with no connection to the rear yard. The solution was to remove the wall between the kitchen and dining room, create a large new north-facing opening to a new rear deck, and add a window seat in the living room to make it feel bigger without adding floor area, but massively improving the cross ventilation.


We also moved the carport to the front driveway and added a second living space under the main roof, for extra flexibility.
The new carport and verandah design riffs on the retro California style of the era of the original house, with futuristic curved steel columns and lightweight flowing roofs. The internal and external materials and finishes compliment the original sandstone and cream brickwork and bring the clients love of native plants to life.
A minimal intervention for maximum return.









Year Joined
Projects Listed

Jon Lowe Architect.
Other People also viewed
Why ArchiPro?
No more endless searching -
Everything you need, all in one place.Real projects, real experts -
Work with vetted architects, designers, and suppliers.Designed for Australia -
Projects, products, and professionals that meet local standards.From inspiration to reality -
Find your style and connect with the experts behind it.Start your Project
Start you project with a free account to unlock features designed to help you simplify your building project.
Learn MoreBecome a Pro
Showcase your business on ArchiPro and join industry leading brands showcasing their products and expertise.
Learn More
















